
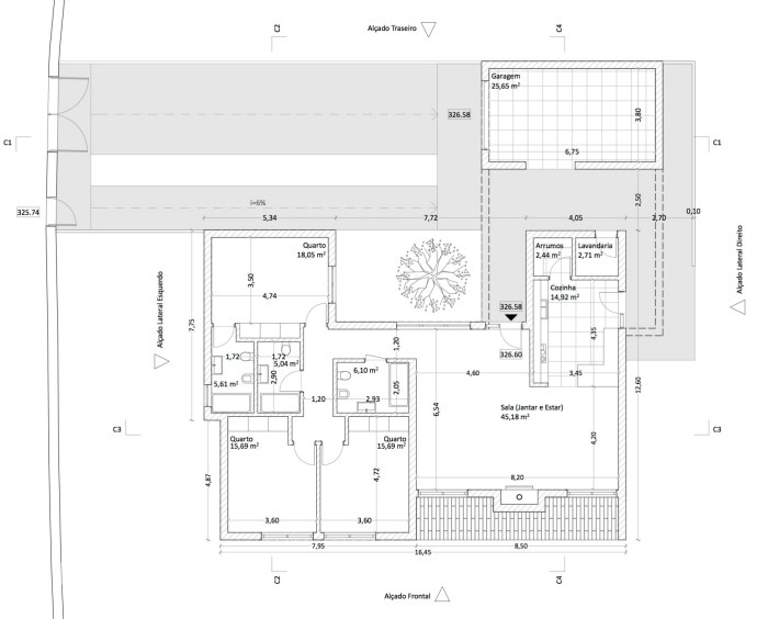
Uma moradia numa zona rural, maioritariamente habitacional e com uma excelente exposição solar.
A habitação de três quartos, tem 234,10m2 de implantação. Desenvolve-se num único piso.





Uma moradia numa zona rural, maioritariamente habitacional e com uma excelente exposição solar.
A habitação de três quartos, tem 234,10m2 de implantação. Desenvolve-se num único piso.



