Saltar para o conteúdo
Menu
Home
Projects
services
Team
M+ARQ
Arquitectura e Interiores
EC C 02
Navegação de artigos
Artigo anterior
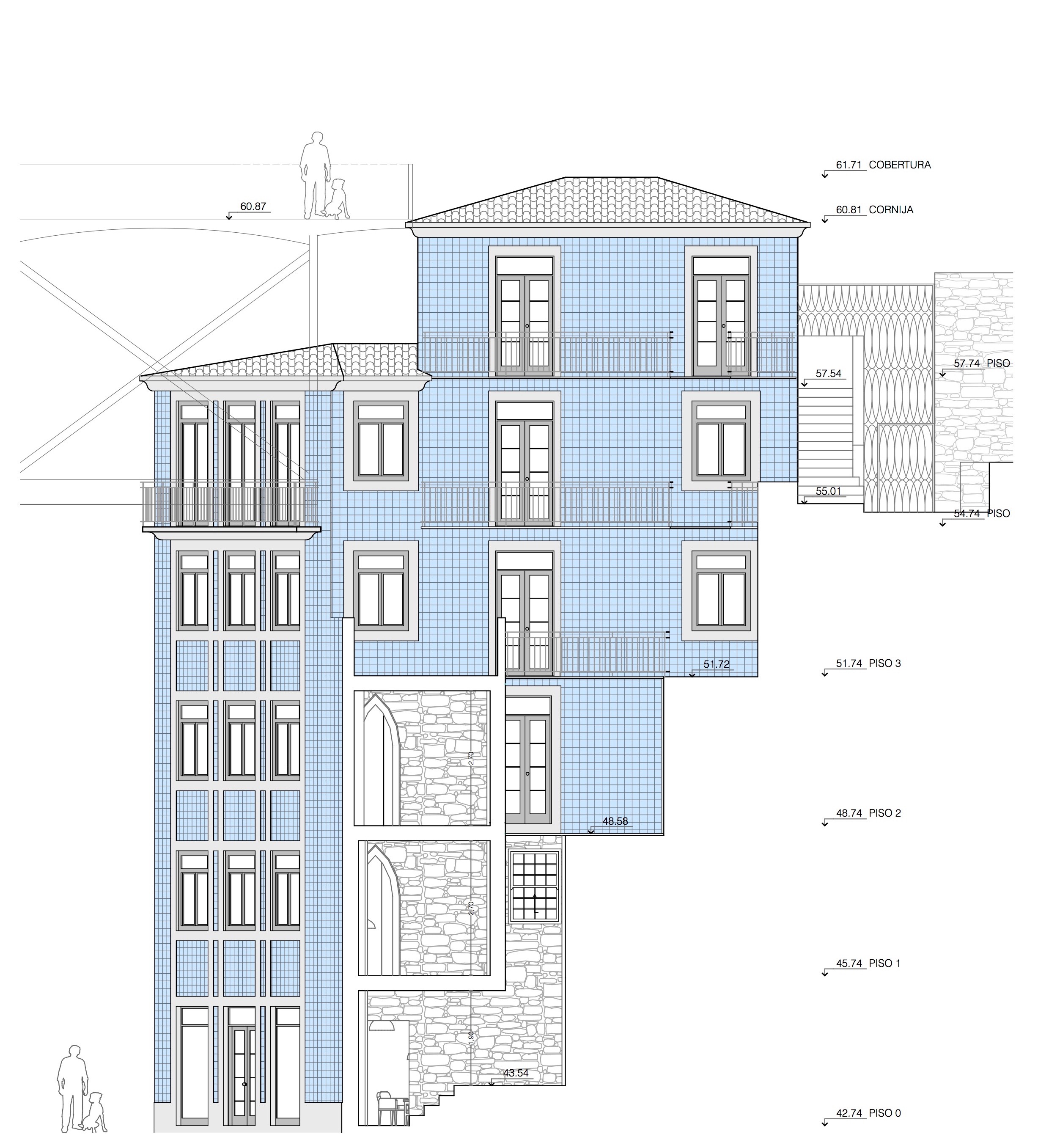
APARTAMENTOS TURÍSTICOS NAS ESCADAS DO CODEÇAL